«Voltar

Venda Terreno Urbano

Detalhes do imóvel

Descrição

'Oportunidade Única: Terreno Estratégico para Desenvolvimento Residencial e Comercial!

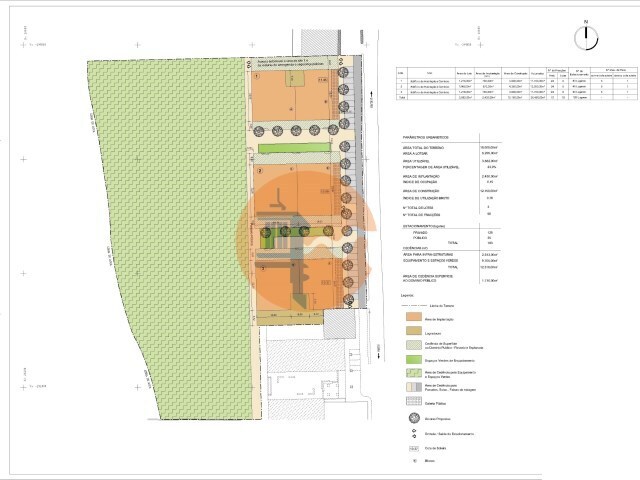
Localizado em uma das principais vias de acesso da cidade, com transporte público regular, este terreno de 16.000m2 é ideal para a construção de um empreendimento de destaque. O projeto prevê a construção de 3 blocos, totalizando 72 apartamentos, 18 lojas e 128 lugares de estacionamento.

Todas as infraestruturas necessárias, incluindo água, luz, esgotos e gás de rede, estão disponíveis no local. Além disso, a estrada está atualmente passando por reabilitação, com melhorias planejadas que incluem novos estacionamentos e espaços verdes.

Nos planos está também a criação do Parque da Cidade, um parque urbano com 44 hectares, localizado na parte traseira do empreendimento. Esta é uma oportunidade única para investir em um projeto que não apenas oferece um excelente potencial de retorno financeiro, mas também contribui para o desenvolvimento sustentável e a qualidade de vida da comunidade.

Não perca a chance de fazer parte deste empreendimento inovador. Entre em contato conosco hoje mesmo para mais informações e para explorar esta oportunidade emocionante!'

Marcar visita à propriedade
Mais informação

(Todos os campos são de preenchimento obrigatório)

Autorizo que os dados inseridos neste formulário apenas sejam utilizados para o fim a que o mesmo se destina.