Detalhes do imóvel
-
Distrito
Porto -
Concelho
Lousada -
Localidade
Silvares
-
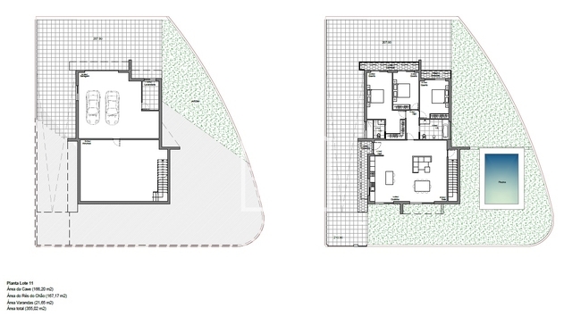
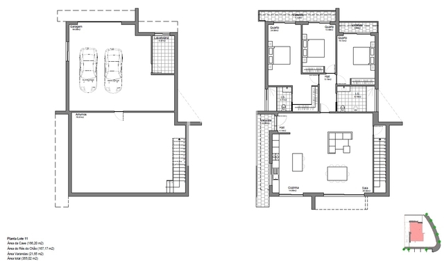
Area
333 m²
-
Preço
455.000 € -
Certificado Energético
ND
-
Código interno
DSICTPV729 -
Código externo
DSICTPV729
Descrição
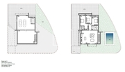
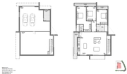
Moradia T3 em Loteamento – Lousada
Descubra a harmonia perfeita entre conforto, modernidade e tranquilidade neste loteamento exclusivo em Lousada.
Principais Características:
- Tipologia T3 com layout funcional e luminoso
- Sala ampla em open space com cozinha totalmente integrada
- Suíte privativa, dois quartos adicionais e duas casas de banho
- Garagem fechada e lavandaria
- Jardim privativo ou pátio exterior, ideais para convívio e lazer
- Possibilidade de cave, garagem dupla ou piscina privativa em algumas unidades
Situada numa zona residencial calma, com excelentes acessos às principais vias .
A poucos minutos de escolas, comércio, serviços e do Complexo Desportivo de Lousada.
Arquitetura contemporânea, linhas modernas e acabamentos de qualidade superior.
O loteamento foi pensado para oferecer privacidade, conforto e bem-estar, criando um ambiente perfeito para famílias que valorizam qualidade de vida.
Casas de Várzea – Viver bem é viver aqui.
Moradias T3 modernas, num ambiente seguro e harmonioso, pensadas para o seu conforto e o da sua família.