«Voltar

Venda Loja T0

Detalhes do imóvel

Descrição

Espaço Comercial destinado a Eventos e Negócios em Santarém, que faz da sua centralidade o local indicado para reuniões de trabalho ou de lazer.

Situado a 40 minutos do Aeroporto de Lisboa e a 3 minutos do nó da A1, A15 e A13 ,servida na linha do Norte pelos comboios Alfa e Intercidades e perto do Aeródromo de Santarém.

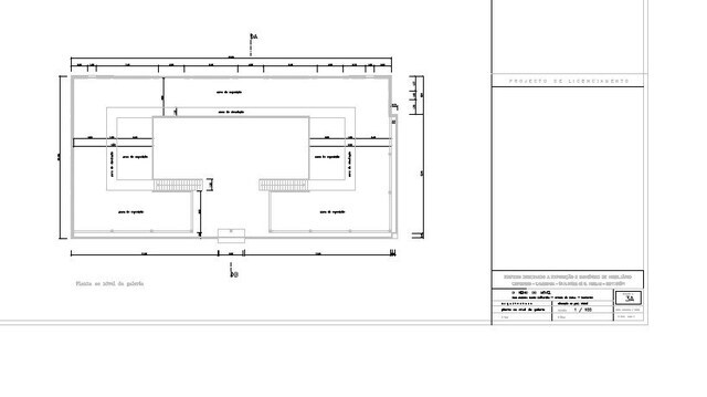
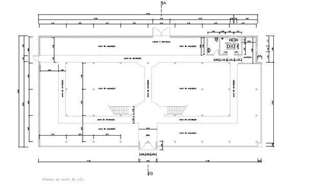
Inserido numa nave de 800 m2 com mezzanine e salas dimensionáveis. No seu interior encontramos dois pisos, num total de 1200 m2 de área útil.
Frente toda ela envidraçada, que transmite imensa luz ao seu interior, onde encontramos um amplo e moderno open espace, que pode ser dimensionado em salas de diversas áreas, nas quais poderão ter lugar as mais variadas reuniões e ações de formação, lançamento de novos produtos ou apresentação de coleções.
Três espaçosas e elegantes WC servem o espaço.

Vários equipamentos de frio e uma ampla cozinha permitem ação de backup a catering para a eventos de qualidade.

A versatilidade do espaço permite ainda a sua utilização como armazém e loja de exposição dos mais variados sectores comerciais, ou como plataforma logística, privilegiando a sua localização.

Inserido num lote de 4800 m2, dispõe de um amplo estacionamento privativo e de fácil acesso.

A sua Arquitetura em vidro permite uma boa luminosidade e a projeção do Sol durante dia confere uma temperatura agradável e acolhedora ao espaço, complementada por uma distribuição de luz artificial de elevada qualidade, realçando os eventos noturnos.

Venha conhecer!

Marcar visita à propriedade
Mais informação

(Todos os campos são de preenchimento obrigatório)

Autorizo que os dados inseridos neste formulário apenas sejam utilizados para o fim a que o mesmo se destina.